XH15 Hybrid Caravan
XH15 Hybrid Caravan
The XH15 is a self-contained adventure-vehicle with every inch of its compact, go-anywhere design meticulously planned.
With an XH15 in tow, you can travel anywhere in Australia, making the most of the best campsites in the most remote areas.
$56,990

Key Features
Trailer Specs
3D Plan
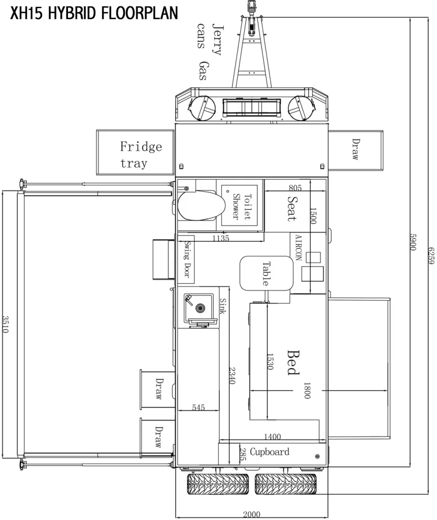
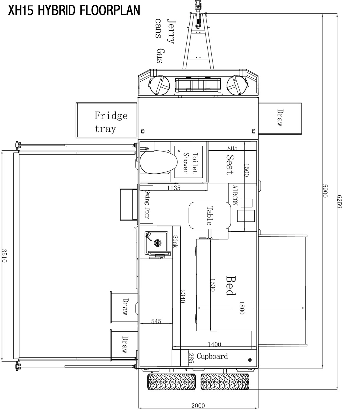
Floorplan
Power
Plumbing
Kitchen
Exterior
Interior
Storage
Brochure
Video
Key Features
- Heavy duty, galvanised steel chassis with off-road, independent coil spring suspension and dual shock absorbers
- Strong lightweight aluminium body, frame, and floor and wall panels. The whole van weighs no more than a standard steel-bodied camper trailer. The XH15 hybrid is light enough to take anywhere and with 700kg of payload capacity, you can pack everything you need to camp for a long time and a good time.
Trailer Specs
- Overall size 6450Lx 2220Wx 2365H
- Campsite size 6450L x 3270W x 2870H
- Tare weight 2200kg
- ATM: 2900 kg
- Load capacity 700kg
- ALKO 3500kg off-road coupling
- Coil spring independent suspension
- Heavy-duty off-road dual shock absorbers
- Heavy-duty off-road hot-dipped galvanised chassis
- Aluminium body frame and panels
- Four drop-down stabiliser legs
- Heavy-duty dual-wheel jockey wheel
- Two rear mounted spare wheels
3D Plan

Floorplan
Power
- Three RENOGY 12V 100Ah Core Series Deep Cycle Lithium Iron Phosphate (LiFePO4) Batteries
- RENOGY 50A DC to DC MPPT On-board Battery Charger
- 400-watt roof-mounted monocrystalline cell solar panel
- RENOGY 2000W Pure Sine Wave Power Inverter
- RENOGY ONE Core energy monitoring
- 240V power inlet and 240V charger
- 240V power outlets powered by the inverter
- Energy efficient multicolour LED lights
- Multiple USB outlets
Plumbing
- 1100h x 650w fully enclosed shower and toilet room with exhaust fan
- Thetford cassette toilet
- Truma Ultrarapid 240V and gas hot water system
- 200L freshwater tank
- 130L grey water tank
- Internal sink
- Outdoor kitchen with plumbed sink
- External shower with tent
- Tap on draw bar
Kitchen
- Always ready all-weather kitchen
- Top-hinge door for instant shelter
- Simple to use roll-out awning
- Inbuilt Dometic stainless steel three-burner stove
- Plumbed sink with hot and cold water
- LED lighting designed to eliminate shadows
- Tall deep pantry
- Generous overhead cupboards
- Two large drawers under the slide are accessible even when the kitchen is closed
- Fridge compartment 975Lx 555Wx 650H will easily accommodates a 95L Dometic or myCOOLMAN fridge
Exterior
- Electric pop-top roof
- Sleek exterior doors
- Windows with mesh blinds and block-out screens
- To extend your living space a complete set of canvas walls is included that slip into place along sail-track runners
- Roll out awning with enclosed walls and floor
- Basic flat canvas annex extension with poles included
- Inflatable room annex extension or inflatable kids’ room optional extra
Interior
Sleeping
- Space-saving fold-out main queen bed extension – access both sides of the bed!
- Innerspring mattress standard
- Two single bunks – fold-away top bunk 1800 x 650mm fold-away top bunk and converted dinette/lounge 1600 x 800mm
Dining
- Adjustable height, rotatable table
- Cushioned upholstered dining area
Entertainment
- DVD stereo system with Bluetooth/USB/AUX/iPhone connectivity
- 24” LCD HD TV
- Digital TV antenna
Heating and air conditioning
- Reverse cycle under-bunk air conditioning
Storage
- Four enclosed jerrycan holders
- Two enclosed 4.5kg gas bottle holders
- Enclosed generator storage
- Front tunnel boot
- Two pantry cupboards
- Seven internal drawers
- Six internal cupboards
- Two internal wardrobes
- Under-lounge storage
- Under-bed storage
Brochure
Video


